info@media-concept.hr+385 91 22 31 194

Ekskluzivno građevinsko zemljište s projektom za dvije luksuzne vile

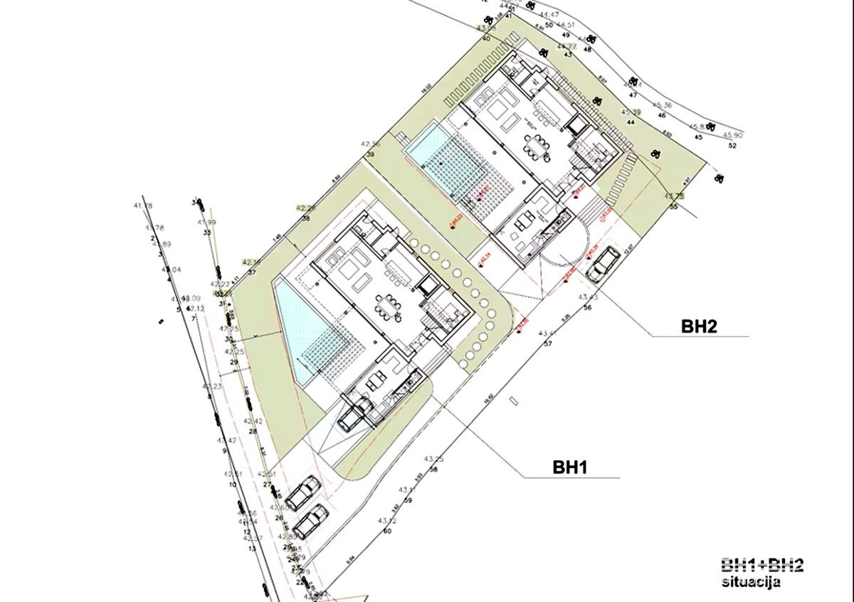
Površina parcele 1400 m2
Lokacija Šibenik
ID SAG2471
259.000 €
Preuzmite expose

OPIS

Ekskluzivno građevinsko zemljište s projektom za dvije luksuzne vile

Šibenik – Jadranska obala
Na prodaju je atraktivno građevinsko zemljište površine cca 1.400 m², smješteno na mirnoj i povišenoj lokaciji u blizini Jadranske obale. Zemljište se prodaje s vrhunskim arhitektonskim projektom za izgradnju dviju modernih luksuznih vila, dok je građevinska dozvola u postupku ishođenja. Sva projektna dokumentacija je pripremljena.

Opis projekta
Projekt obuhvaća dvije samostojeće dizajnerske vile koje zadovoljavaju najviše standarde arhitekture, komfora i privatnosti. Obje vile odlikuju se modernim linijama, velikim staklenim površinama i neometanim panoramskim pogledom na more.
Karakteristike svake vile
Panoramski pogled na more
Privatni bazen
Vlastita garaža
Dizalo
Prostrane terase i moderan raspored prostorija
Visokokvalitetna, bezvremenska arhitektura
Profesionalna projektna dokumentacija s vizualizacijama

Zemljište
Ukupna površina: cca 1.400 m²
Podijeljeno na dvije zasebne parcele
Vlastiti privatni pristupni put
Priključci struje, vode i kanalizacije u neposrednoj blizini
Mirno i prirodno okruženje s visokom razinom privatnosti

Kupoprodajna cijena
259.000 €
(uključuje projektnu dokumentaciju i građevinsku dozvolu u postupku)

Lokacija
Nekretnina se nalazi na vrlo poželjnoj lokaciji u blizini povijesnog grada Šibenika. Jadranska obala, plaže, marine, restorani i trgovine udaljeni su svega nekoliko minuta vožnje. Spoj mira, pogleda na more i blizine grada čini ovu nekretninu izuzetno atraktivnom – kako za privatne kupce, tako i za investitore.

Investicijski potencijal i dodatne usluge
Projekt je idealan za:
Luksuzne kuće za odmor
Reprezentativne obiteljske vile
Investicije s visokim potencijalom turističkog najma

Na zahtjev kupca moguće je:
izvesti kompletnu gradnju po sistemu „ključ u ruke“
preuzeti upravljanje i turistički najam nakon završetka gradnje

ZNAČAJKE

  • Pogled na more : Da
  • Udaljenost od mora : cca 100 m

Poštovani kupci, posrednička provizija prema uvjetima poslovanja iznosi 3% + PDV (25%), sveukupno 3,75% od kupoprodajne cijene.
Nekretninu je moguće razgledati isključivo uz potpisani Ugovor o posredovanju koji je temelj za daljnje radnje vezane uz kupoprodaju i naplatu provizije, a sve sukladno Zakonu o posredovanju u prometu nekretnina.

KONTAKTIRAJTE AGENTA